Amerikanskt möter svenskt strandliv

Paret som är smått besatta av vindsurfing gav Arkitektstudion Widjedal Racki uppdraget att rita Surfer’s House, ett sommarhus på södra Västkusten
Sommarhus i vitt

Foto: Åke E:son Lindman

Amerikansk femtiotalsmodernism med enkla nätta hus möter svensk sommarstuga. Resultatet är stora ytor vitmålat trä och ett geometriskt exakt uttryck i en allmän och en mer privat volym som binds ihop med en enkel passage.

Drömmen om att bo vid havet kan gestaltas rätt olika. En del längtar sandigt soliga bad, andra njuter hav och himmel. Eller vandrar i tallskogar, över klippor, längs med strandvillor. Men att formge ett hus helt efter en passion för vindsurfing är rätt annorlunda. Inte desto mindre blev det uppdraget för arkitektstudio Widjedal Racki. Beställarparet är bägge smått besatta av vindsurfing, och ett sommarhus på södra Västkusten är perfekt för att både njuta av havet och kila ned genom vresrossnåren för lite surfing.

Huset ligger delvis dolt

Foto: Åke E:son Lindman

– En minst lika viktig ingrediens till Surfer’s House är den klassiska amerikanska femtiotalsmodernismen som beställarna mött i strandhus på windsurfingställen längs med den amerikanska västkusten, förklarar arkitekt Håkan Widjedal.

De ville plocka med sig hem den känslan när de hade hittat en bra tomt där de också nu kan vindsurfa på hemmaplan. Huset blir privat och offentligt på en och samma gång. Mellan strand och hus ligger en allmänning med en väl upptrampad stig, huset är dock dolt bortom lågt planterade buskar. Till väster ligger ett populärt naturreservat.

Öppen planlösning kök vardagsrum

Foto: Åke E:son Lindman

Invändigt är det sparsmakat rena linjer och ytor. Tydliga horisontella och vertikala linjer, ett fåtal olika material. De större rummen har direkt anslutning till den omgivande naturen tack vare de skjutbara glaspartierna.

Håkan som själv har surfat en del, berättar att placeringen av brädor och segel spelat en viktig roll i det horisontellt markerade husets utformning. Till största del är det en enkel träkonstruktion med vissa stålförstärkningar och smala pelare. Golvet utgörs av en platsgjuten maskinglättad platta som infärgats med titandioxid för att få ett ljusare uttryck. Ytterfasaden är byggd med en liggande klassisk träpanel som dock fått en något egen profilering.

– Familjen har spenderat sina semestrar på olika vindsurfingställen i USA och har velat plocka med sig strandkänslan från amerikanska västkusten hem till Sverige, berättar Håkan Widjedal. Och det är kul att som arkitekt få ett så pass udda program, då kommer man utanför mallen och får chansen att göra något helt annat än det vanliga.

 

Kök, matplats och uteplats

Foto: Åke E:son Lindman

De amerikanska influenserna är inte att ta fel på, här anspelas på tidiga modernister som Rickard Neutra och Rudolf Schindler, båda hade sökt sig till USA under 1910- och 1920-talet för att experimentera med stora glasytor och öppna planlösningar som upphävde gränsen mellan inne och ute. Det handlade både om naturromantik, och om att skapa en neutral och närmast abstrakt arkitektur för den nya fria människan. Och nog finns det också referenser till Mies van der Rohe vars Barcelonapaviljong och Neue Nationalgalerie i Berlin visar på samma konstraster mellan vad som bär och vad som är buret. Och även lite av svenska pionjärer som Per Friberg och Bruno Mathson. Men framförallt hämtas inspirationen från amerikanskt femtiotal där förlagorna omtolkades i enkla charmiga strandvillor. Och öppenheten är ett genomgående tema i Surfer’s House. Väggar av glas och öppet åt alla håll, och ett maximerande av platsen och läget enligt Håkan Widjedal.

Utsikt från köket

Foto: Åke E:son Lindman

Utsikten från köksön är hänförande. Ljusföringen skapar kontraster i den övervägande vitmålade interiören, notera också överljuset som sprider sig längst undertaket, en enkel lösning för att ge mer naturligt ljus och spara på det elektriska.

Matplats vid panoramafönster

Foto: Åke E:son Lindman

Trä, betong och glas. Tydligt åtskilda material, vart och ett med sina distinkta egenskaper. Och till detta noggrann precision i alla detaljer.

Carport till windsurfingbrädor

Foto: Åke E:son Lindman

Vindsurfingbrädorna är en del av arkitekturen, likaså seglen som fått en stor carport där de kan hängas in.

– Dels ska det vara lätt att bära in seglen, dels ska de skyddas från UV-strålning, säger Håkan Widjedal. Det finns också en utedusch här där man även sköljer av våtdräkterna. Förvaringen av alla vindsurfingprylar spelar en viktig roll i husets gestaltning. Se den här passagen vid sovrummen där man i ena fonden ser de färgade seglen.

Uteplats under tak

Foto: Åke E:son Lindman

Rummen möter utsikten både inne och ute, och köket och vardagsrummets betonggolv fortsätter naturligt utomhus där det finns fler bord med sittplatser. Arkitekturen vill mer än att skapa fysiska rum, de sociala där man möts till både vardag och fest är minst lika viktiga.

Entré

Foto: Åke E:son Lindman

– Vi hade en rätt lång omskissningsprocess, förklarar Håkan Widjedal. Hur skulle man få lä och samtidigt sol på den här blåsiga platsen? Skydd från regn och även från för mycket sol? Hur skulle man bevara känslan av att vara på resa med strand och hav som de viktigaste ingredienserna? Nu har vi fått till en sommarvilla präglad av en saltstänkt surfsemester där både Sverige och USA möts.

Badrum

Foto: Åke E:son Lindman

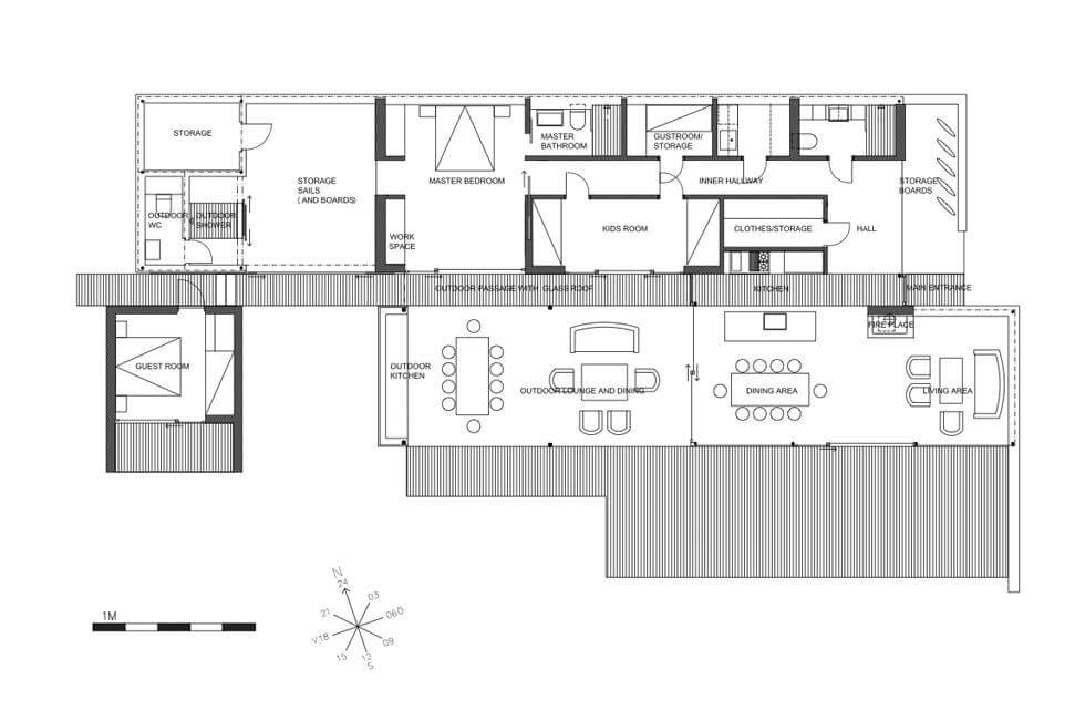
Planritning.

Planritning.