1 504 lukukertaa ·
2 vastausta
2k lukukertaa
2 vastausta
Kantava seinä?
Hei!
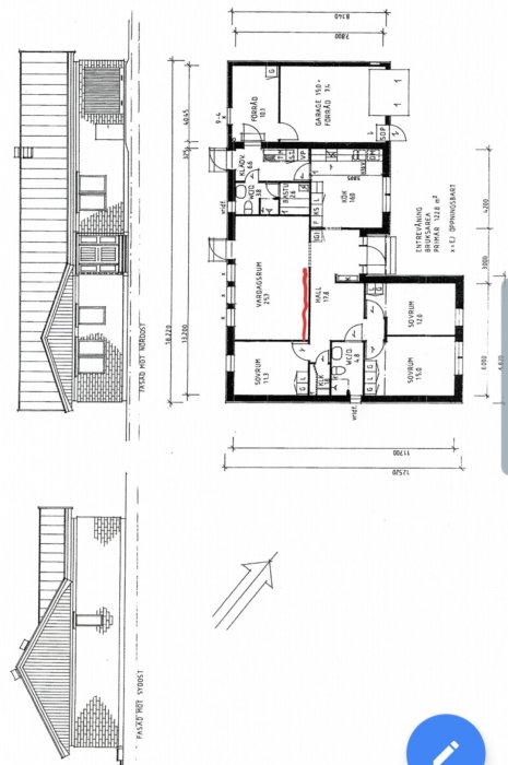
Olen hankkinut talon (ensimmäinen). Tarkoitukseni on joko avata tai poistaa seinä olohuoneen yhteydessä.
Talo on 1-kerroksinen Gullringshus, rakennettu 89. Olen lukenut toisesta ketjusta, että kattotuolit tukevat vain ulkoseiniä. Mutta kun tarkastelen piirustusta tavallisena maallikkona, se näyttää kantavalta. Joten kysymys on, onko tämä seinä kantava vai ei?
Olen hankkinut talon (ensimmäinen). Tarkoitukseni on joko avata tai poistaa seinä olohuoneen yhteydessä.
Talo on 1-kerroksinen Gullringshus, rakennettu 89. Olen lukenut toisesta ketjusta, että kattotuolit tukevat vain ulkoseiniä. Mutta kun tarkastelen piirustusta tavallisena maallikkona, se näyttää kantavalta. Joten kysymys on, onko tämä seinä kantava vai ei?
Paras vastaus
Jäsen
· Blekinge
· 10 117 viestiä
Seinä ei todennäköisesti ole kantava. Kattotuolit ovat ristikkomallisia ja itsekannattavia ulkoseinien välillä. Ensimmäisessä pohjapiirroksessa on katkonainen viiva kahden kulmittain sijaitsevan makuuhuoneen läpi. Tämä viiva merkitsee todennäköisesti palkkia, jonka päällä kattotuolit lepäävät. Sinun pitäisi pystyä näkemään tämä palkki näiden huoneiden katossa.
Kiitän nöyrästi nopeasta ja perusteellisesta vastauksesta! En ole vielä muuttanut sisään, täytyy katsoa palkkia silloin.J justusandersson sanoi:Seinä ei todennäköisesti ole kantava. Kattotuolit ovat warren-ristikkotyyppiä ja itsestään tukevat ulkoseinien välillä. Ensimmäisessä pohjapiirustuksessa on katkoviiva, joka kulkee kulmassa olevien kahden makuuhuoneen läpi. Tämä viiva merkitsee todennäköisesti palkin olemassaoloa, jonka päällä kattotuolit lepäävät. Sinun pitäisi nähdä tämä palkki huoneiden katossa.
Klikkaa tästä vastataksesi
Samankaltaisia ketjuja
-
Rev en icke bärande vägg, ska nu sälja huset.
Utbyggnad och tillbyggnad -
Voiko seinän kantavuuden selvittää?
Rakennusmateriaalit & Rakennustekniikka -
Palkki kantavaan seinään?
Rakennusmateriaalit & Rakennustekniikka -
Bärande vägg? W-takstolar
Planlösningar -
Kantavat seinät 70-luvun talossa
Rakennusmateriaalit & Rakennustekniikka


