835 lukukertaa ·
3 vastausta
835 lukukertaa
3 vastausta
Kantava seinä?
Hei! Minulla on seinä, jonka suunnittelen purkaa avatakseni pohjaratkaisua hieman.
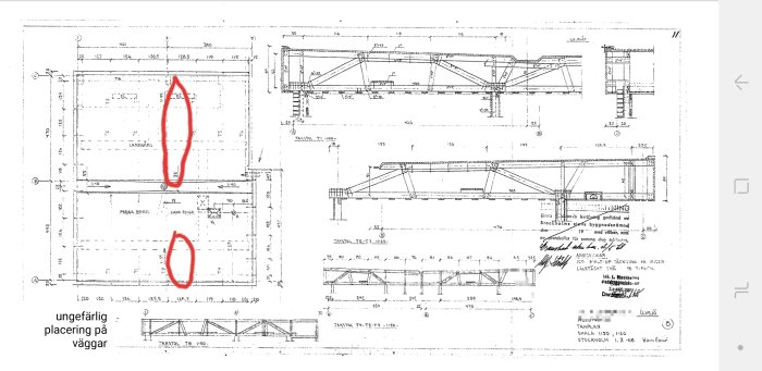
Kyseessä on kaksikerroksinen talo vuodelta 1968, jossa poistettava seinä on yläkerrassa. Koolaukset ovat suoraan betonisen välipohjan päällä. Näyttää myös siltä, että koolaukset jatkuvat kohti kattotuolia.
Arvioin sen kantavaksi, mutta haluaisin mielelläni asiantuntijoiden toisen mielipiteen! Katso kuvat pohjapiirroksesta ja katon rakenteesta.
Kiitos etukäteen!
Kyseessä on kaksikerroksinen talo vuodelta 1968, jossa poistettava seinä on yläkerrassa. Koolaukset ovat suoraan betonisen välipohjan päällä. Näyttää myös siltä, että koolaukset jatkuvat kohti kattotuolia.
Arvioin sen kantavaksi, mutta haluaisin mielelläni asiantuntijoiden toisen mielipiteen! Katso kuvat pohjapiirroksesta ja katon rakenteesta.
Kiitos etukäteen!
Jäsen
· Blekinge
· 10 117 viestiä
Hei ja tervetuloa Byggahus-foorumiin!
Vastauksen kysymykseesi löytyy varmasti piirustuksista. Valitettavasti liitetiedostojen resoluutio on liian huono, jotta voisin lukea sen, mitä haluan.
Vastauksen kysymykseesi löytyy varmasti piirustuksista. Valitettavasti liitetiedostojen resoluutio on liian huono, jotta voisin lukea sen, mitä haluan.
Hei! Kiitos paljon ja kiitos vastauksesta! Yritän ladata tiedostot, jos haluat katsoa niitä tarkemmin. En tosin tiedä, onko niissä parempi resoluutio..J justusandersson sanoi:
Kattosuunnitelma
https://drive.google.com/file/d/1dfo2TEuWzNjlO7NMlMzvE3VAoLcyuT7r/view?usp=drivesdk
K-piirros välipohja ja seinät
https://drive.google.com/file/d/10J3L6-ZL974XitZBrJsXHteb4KKA0CZw/view?usp=drivesdk
Leikkaus
https://drive.google.com/file/d/133WK9PUvQFdNjksKRxyoUMOgmC9mtGq6/view?usp=drivesdk
Viimeksi muokattu:
Jäsen
· Blekinge
· 10 117 viestiä
Se oli hieman parempi mutta ei täydellinen. Minun tulkintani piirustuksista on, että kattotuolit ovat samansuuntaisia kuin ne seinät, jotka haluat purkaa, mikä ei siinä tapauksessa ole mikään ongelma. Mutta se on hieman epäselvää, jotta se tuntuisi hyvältä. Onko sinulla ulkokuvaa räystäästä?
Klikkaa tästä vastataksesi
Samankaltaisia ketjuja
-
Bärande vägg? W-takstolar
Planlösningar -
Kantavat seinät 70-luvun talossa
Rakennusmateriaalit & Rakennustekniikka -
Är det bärande väggar i min kattvind?
Lösvirke & Timmerhus -
Onko seinä makuuhuoneen ja päivähuoneen välillä kantava?
Rakennusmateriaalit & Rakennustekniikka -
Katkaise kynnys ovenaukossa. Kantava seinä.
Rakennusfysiikka


