Hej!
Vi funderst på att bygga ut vårt hus och skulle gärna vilja ha lite råd och idéer kring hur vi kan göra för att optimera ytan. Det vi saknar är framförallt:
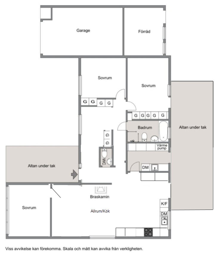
Bifogar planlösningen.
Störst yta att bygga ut åt på är norr, vilket blir till höger på bilden. Åt samma håll som kök och altan (som förövrigt också kommer behöva byggas om).
Min spontana tanke är att bygga ut vid köket för att göra det större och samtidigt bygga ett sovrum där, så kan barnen ha sina sovrum i den andra delen av huset.
Men jag tycker att det är svårt att veta riktigt hur. Ska anlita en arkitekt längre fram men vill gärna ha lite egna tankar först så att det inte bara blir ett spontanbeslut.
Öppen för alla idéer! T.ex:
- Flytta ingången/hallen till sällskapsrummet eller lilla rummet (men då behövs den yta någonannanstans)
- Ha vårt sovrum där sällskapsrummet är idag och istället bygga ut vid köket och göra stort vardagrum/kök och inglasad altan i anslutning.
- Göra boyta av förrådet och ha förvaring/kontor där.
Något vi uppskattar idag är att kunna stänga till vardagsrummet då det ses endel på sport vilket kan bli högljutt, men också att kunna dela upp sig och umgås i olika rum eftersom det är de sällskapsytorna vi har.
Jag tycker också att braskaminens placering försvårar mina tankar också, så hjälp!
Vi funderst på att bygga ut vårt hus och skulle gärna vilja ha lite råd och idéer kring hur vi kan göra för att optimera ytan. Det vi saknar är framförallt:
- En större yta för att kunna placera ett större matbord, så vi kan bjuda in gäster och ha plats för fler vid middagsbordet.
- Plats för både fullstort kylskåp och frys i köket.
- Ett nytt sovrum till oss föräldrar.
- En bättre lösning för hallen (minst viktigt men ett önskemål).
- Ha utgång till altanen på baksidan som inte är genom tvättstugan.
Bifogar planlösningen.
Störst yta att bygga ut åt på är norr, vilket blir till höger på bilden. Åt samma håll som kök och altan (som förövrigt också kommer behöva byggas om).
Min spontana tanke är att bygga ut vid köket för att göra det större och samtidigt bygga ett sovrum där, så kan barnen ha sina sovrum i den andra delen av huset.
Men jag tycker att det är svårt att veta riktigt hur. Ska anlita en arkitekt längre fram men vill gärna ha lite egna tankar först så att det inte bara blir ett spontanbeslut.
Öppen för alla idéer! T.ex:
- Flytta ingången/hallen till sällskapsrummet eller lilla rummet (men då behövs den yta någonannanstans)
- Ha vårt sovrum där sällskapsrummet är idag och istället bygga ut vid köket och göra stort vardagrum/kök och inglasad altan i anslutning.
- Göra boyta av förrådet och ha förvaring/kontor där.
Något vi uppskattar idag är att kunna stänga till vardagsrummet då det ses endel på sport vilket kan bli högljutt, men också att kunna dela upp sig och umgås i olika rum eftersom det är de sällskapsytorna vi har.
Jag tycker också att braskaminens placering försvårar mina tankar också, så hjälp!
BirgitS
Medlem
· Stockholms län
· 45 948 inlägg
BirgitS
Medlem
- Stockholms län
- 45 948 inlägg
En bra arkitekt gör bäst jobb om de har en kravlista (så som ditt inlägg) men inte tänkta planlösningar att utgå från. Planlösningsförslag gör att de kan förhindras att komma med banbrytande idéer.T tacksamförallatips skrev:
Är köket + allrummet ett tillräckligt stort rum för kök och rymlig matplats (med borttagen vägg emellan)?
Eller är allrummet tillräckligt stort för att fungera som vardagsrum?
Är väggen mellan allrum och kök bärande?
Hej, tack för ditt svar. Hade inte tänkt på att det kan begränsa arkitekten! Just nu är vi fortfarande i en väldigt tidig fas och funderar på om det ekonomiskt är bättre att köpa ett större hus länge fram eller om vi kan bygga ut/göra om där vi bor utan att det blir alltför dyrt. Vi trivs bra med läget.BirgitS skrev:
En bra arkitekt gör bäst jobb om de har en kravlista (så som ditt inlägg) men inte tänkta planlösningar att utgå från. Planlösningsförslag gör att de kan förhindras att komma med banbrytande idéer.
Är köket + allrummet ett tillräckligt stort rum för kök och rymlig matplats (med borttagen vägg emellan)?
Eller är allrummet tillräckligt stort för att fungera som vardagsrum?
Är väggen mellan allrum och kök bärande?
Huset är på 103 kvm + garage/förråd på 36 kvm.
Jag tror att kök + allrum (utan väggen) kan vara nog stort för att få plats med större matbord och hel kyl/frys, men då behöver hallen flyttas.
Hittade den här planritningen från förra ägaren, vet inte om den hjälper något. Jag kan inte utläsa om väggen är bärande, men den är tjockare än övriga. På den här ritningen är det också en dörr till köket men i dagsläget är det ett större valv.
Allrummet är inte nog stort i sig för att fungera som vardagsrum men du väckte ändå en tanke där. Kanske skulle kunna fungera om det rummet får några kvm från nuvarande kök och det nya köket blir i utbyggnaden.
BirgitS
Medlem
· Stockholms län
· 45 948 inlägg
BirgitS
Medlem
- Stockholms län
- 45 948 inlägg
Kanske skärma av hallen med en sidovägg, ungefär som i förra ägarens ritning fast kanske ändå längre för att få dit mer förvaring?T tacksamförallatips skrev:
Eller bygga ut hallen lite över altanen?
Har du några fler ritningar, helst en sektionsritning, alltså en genomskärning av huset?T tacksamförallatips skrev:
Alternativt kan komma upp vinden och kolla hur takstolarna ser ut?
Det går att göra avväxlingar av bärande väggar men när det är långa sträckor så blir balken hög och det blir dyrt.
Det ser ut som en skjutdörr till köket, vilket skulle kunna vara orsaken till att väggen är tjockare.
Ett sovrum på drygt 20 kvm är väl onödigt mycket så det skulle väl gå att göra nuvarande vardagsrum mindre så att det blir mer lagom stort för ett sovrum (15 kvm?). Men den väggen kan också vara bärande.T tacksamförallatips skrev:
För att få plats med matbord osv. på den ytan så behöver vi nog bygga ut hallen över altanen.BirgitS skrev:
Bifogar en till här som jag hittade. Hoppas att det går att zooma! Här är både väggen mellan allrum+ kök och väggen mellan allrum + vardagrummet utmärkta, men inte de till två av sovrummen. Kan det betyda att de är bärande? Huset har platt tak så ingen vind att titta på 😊BirgitS skrev:
Wow snyggt! Tar med mig det i tanken 🤗K Kontoristen7 skrev:
Hade helt klart varit ett bra alternativ, men jag är rädd att huset ändå kommer att kännas för litet för två vuxna och två barn (när de blir äldre). Så jag tror ändå att någon form av utbyggnad behöver ske. Samt gärna separera kök/vardagsrum om det är möjligt. Kanske med skjutdörrar eller liknande så att man kan välja att stänga om sig eller ha det öppet 😊
BirgitS
Medlem
· Stockholms län
· 45 948 inlägg
BirgitS
Medlem
- Stockholms län
- 45 948 inlägg
Ingen aning, det är nog ingen standardiserad ritning på det sättet.T tacksamförallatips skrev:
Här är ett exempel på en sektionsritning: https://www.harryda.se/byggaboochmi...sektionsritning.4.c0a4fce18180017910f406.html
Men har du ingen sådan eller tekniska beskrivningar är det bäst att ta in en byggkonstruktör innan man river några väggar.
Klicka här för att svara





