Naturhus - hus i växthus vid Vättern

Intresset för hus i växthus har varit enormt sedan ett sådant bygge figurerade i tv-programmet Husdrömmar och vi hittade ett till, Uppgrenna Naturhus vid Vättern som är ritat av arkitekt Fredrik Olsson.
Hus i växthus med utsikt över Vättern

Foto: Ulf Celander

Att klä in sitt hus med ett växthus gör förstås att våren kommer mycket tidigare, förutom att energikostnaden sänks rejält. Även strax intill Vättern, närmare bestämt i höjd med Visingsö, går det att få till ett åtminstone norditalienskt klimat. I entrén till Uppgrenna Naturhus kommer man dessutom ytterligare lite söderut när man möter en liten medelhavsträdgård med tomater, meloner, pumpor och annat gott i en växtbädd som också är en del i byggnadens slutna kretsloppssystem. Naturhuset har ersatt en gammal östgötsk faluröd lada, men är snarlik till utseende med enkla portar och luckor trots att taket nu är helt i glas. Ladukaraktären finns kvar i den nya konstruktionen som kombinerar ett slutet bottenplan med ett övre oisolerat entréplan med plats för odlingar och skyddade terrasser. 

Uppgrenna Naturhus ligger strax norr om Gränna nedanför Brahe hus på den gamla vägen längs med Vättern. Bodil Antonssons vision har varit en mötesplats med en helhetssyn kring ledord som rekreation, inspiration, människa och miljö.

Uppgrenna naturhus sett från vägen

Foto: Ulf Celander

Uppgrenna Naturhus är inte anslutet till det kommunala avloppet, däremot sänds vattenprover regelbundet in till kommunen.

– Allt spillvatten från WC, dusch, kök, tvätt med mera samlas upp och processas i teknikrummet, förklarar Fredrik Olson. Här bryter bakterier ned fasta större partiklar. I andra änden pumpas näringsvattnet ut i entréplanets växtbädd. Växterna tar upp vatten och näring som sedan omvandlas till biomassa, det vill säga själva skörden. Det finns ytterligare en växtbädd på det nedre planet som renar vattnet i ytterligare ett steg. Till slut syresätts det tillräckligt rena vattnet i en damm för att senare släppas ut i ett dike. 

– Vi räknar grovt med att ett hus helt inneslutet i ett växthus kan dra ned på värmeförlusterna med nästan en tredjedel, förklarar arkitekt Fredrik Olson vid Tailor Made arkitekter som har specialiserat sig på hållbar arkitektur och växthusboende. Vi har varken vindavkylning eller regn, och vi får en högre temperatur tack vare solinstrålningen.

Automatiserade växthusfönster

Foto: Ulf Celander

Alla växthusfönster är automatiserade med temperaturstyrda ventluckor uppe vid nocken.

– Jovisst kan man undra hur rengöringen av en så pass stor glasyta går till, säger Fredrik Olson. Men det är inte så krångligt eftersom utsidan inte behöver putsas. Insidan putsas med hjälp av fönsterskrapor med teleskopskaft eller högtryckstvätt, det räcker med att putsningen utförs en gång om året.

Fredrik Olsons kontor ingår i Greenhouse Living, en konsultgrupp som med olika typer av kompetenser genomför naturhusprojekt. Naturhuskonceptet i sig är däremot en äldre idé som formulerades av arkitekten Bengt Warne redan på sjuttiotalet då han lät bygga sitt eget naturhus ute i Saltsjöbaden i samband med att tidskriften Allt i Hemmet firade sitt 20-årsjubileum. Humanekologen tillika arkitekten Warnes motto var att boendet ska stryka naturen medhårs, inte mothårs. Och Fredrik Olson pekar på att Warnes idéer i Uppgrenna Naturhus har blivit en vision om ett hållbart hus som producerar mat istället för avfall, och som genererar energi istället för att bara konsumera. Allt spillvatten tas om hand lokalt och göder växtbäddarna, återstående vatten syresätts innan det släpps ut i ett dike.

Övre planet med växthusglas

Foto: Ulf Celander

Trästommen i det övre planet är träfiberisolerad. Suterrängvåningen är byggd i lättbetong.

– Alla fönster och dörrar har försetts med öppningsbara luckor i samma kulör som den slamfärgade fasadpanelen, förklarar arkitekt Fredrik Olson. Det skapar dynamik åt fasaden samt minskar värmeutstrålningen när huset inte används.

Den nya byggnaden, som delvis är nedgrävd i slänten med sin vida utsikt över Vättern och Grännatrakten, öppnades av Bodil Antonsson för knappt två år sedan. Hon vill inte endast inspirera till ett hållbart byggande, utan även till en helhetssyn kring ledord som rekreation, inspiration, människa och miljö. Naturhuset fungerar som mötesplats, ekocafé och konferenscentrum. I huset odlas åtskilliga växter från varmare klimatzoner, och växthusets varma inneluft kan även förvärma luft till ventilation av det inbyggda huset.

 

Övre planet med växthusglas

Foto: Ulf Celander

Redan under barndomen hade Bodil Antonsson en dröm om ett växthus. Från det att visionen tog form tog det henne 8 år att förverkliga sin dröm

– När jag var liten så brukade jag följa med min far till bygdens plantskola. Jag sprang alltid direkt in i växthuset och satte mig bland pelargoner och tomatsticklingar och njöt i fulla drag av doften, värmen, färgerna, medans pappa valde perenner utanför. Det var något väldigt speciellt med att få vara där tyckte jag, och redan då var jag på det klara med att ett växthus skulle jag någon gång ha!!!

Läs mer

Bor ekologiskt i Naturhus
Husdrömmar: Det du inte fick veta om huset i växthuset
 

rum för avkoppling

Foto: Ulf Celander

Ett rum för avkoppling och rekreation.

Matplats

Foto: Ulf Celander

Här ser vi ett av rummen i nedre plan.

Entrén till huset

Foto: Ulf Celander

Första spadtaget till Uppgrenna Naturhus togs sommaren 2014, i juni ett år senare stod det klart. Det lokala slutna kretsloppet med växtbäddar som renar och tar upp näringen i avloppsvattnet sparar förstås på energi, och ger ett betydligt mindre fotavtryck än traditionella hus. Fredrik Olson betonar att om man släpper ut föroreningar i omgivningen så slår det tillbaka på det egna kretsloppssystemet.

Kvällsbild

Foto: Ulf Celander

En vacker bild av Naturhuset i Gränna by night.

Sektionsritning

Sektionsritning. Foto: Ulf Celander

Sektionsritning

Sektionsritning. Foto: Ulf Celander

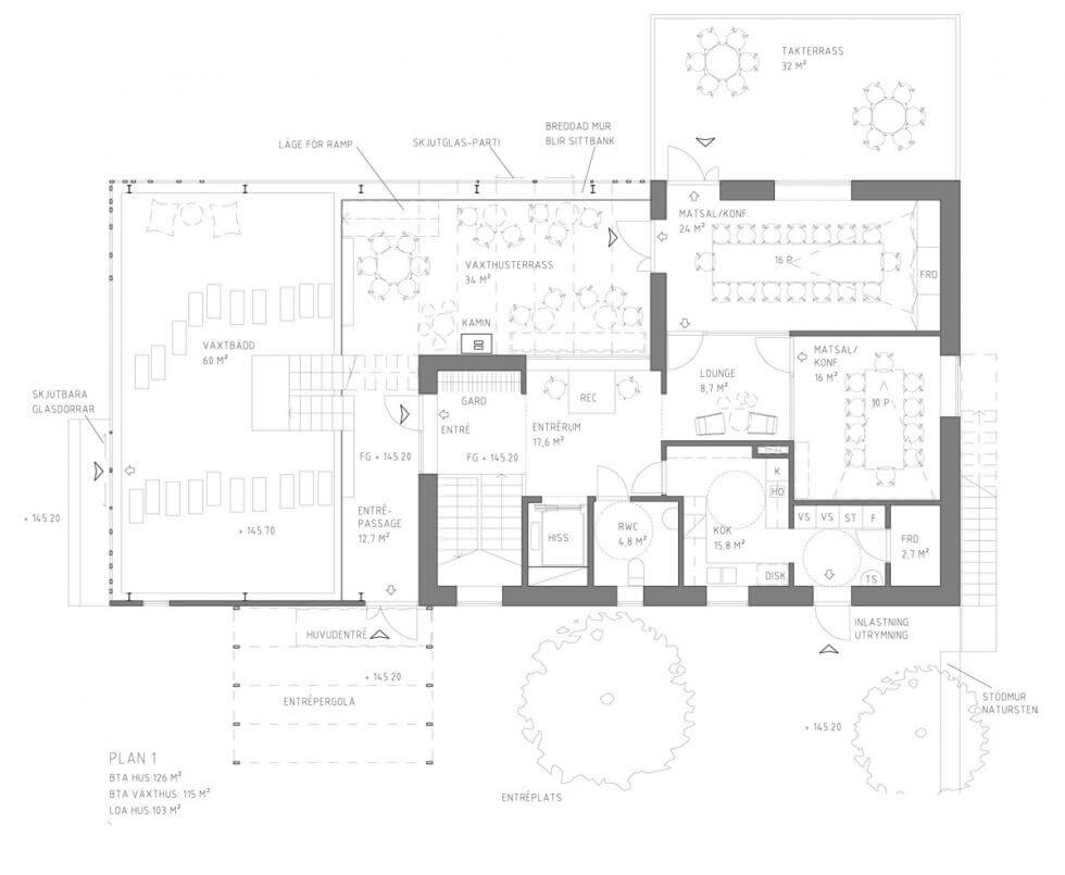
Planritning entréplan

Planritning för plan 1.

Planritning övre plan

Planritning för plan 2.