Modern tillbyggnad i klassisk miljö

Hur skapar man ett modernt tillägg i en så pass känslig miljö som Smedslättens villakvarter från 1920-talet?
Tillbyggnad

Foto: Jason Strong

Arkitekterna på pS Arkitektur Valsen 9 har valt att arbeta inifrån ut, och resultatet är en försiktig tillbyggnad som smälter in i omgivningen. Samtidigt får den växande familjen Engstedt ytterligare 105 kvadratmeter bostadsyta med en ljus och öppen planlösning.

Tillbyggnad

Foto: Jason Strong

Beställarna Peter och Lena Engstedt behövde mer plats för sin växande familj med fler sovrum, ett större kök och en ny tvättstuga. Tillsammans med pS Arkitektur kom de fram till att satsa på en tillbyggnad mot husets gårdssida med ett källarplan som sänks ned i marken, vilket också döljer det från gatan.

– Först skissade vi tillsammans med Peter och Lena på en tillbyggnad i 1,5 plan, men vi insåg rätt snart fördelen med en källare så fick de en ny större tvättstuga med bastu, och dessutom en liten vinkällare med perfekta klimatförutsättningar.

Tillbyggnad med trädäck

Foto: Jason Strong

Övergången mellan det gamla husets form och den nya tillbyggnaden har utförts med en försiktig hand där genomtänkta materialval och färgsättningar ger ett tydligt helhetsuttryck.

– I varje projekt är den stora utmaningen att fånga beställarnas drömbild, understryker pS Arkitekturs Peter Sahlin vars företag till sommaren går samman med Reflex Arkitekter. Det handlar inte bara om hur många kvadratmeter som ska byggas och hur de ska fördelas på olika funktioner: att bygga nytt eller att bygga till är så mycket mer än en stor investering, det är ett livsprojekt som man bara ger sig på en eller två gånger i livet.

Stort fönster

Foto: Jason Strong

– Fönsterplaceringen inifrån och ut speglar vad som händer i själva rummet, förklarar arkitekt Peter Sahlin. Den perfekta planlösningen är inte nödvändigtvis helt öppen eller tvärtom. Det gäller alltid att fråga sig VAD ett rum ska användas till och hur man vill möblera det.

Tillbyggnad

Foto: Jason Strong

En smal passage leder över från den gamla villan till tillbyggnaden. 

– Eftersom vi vill få in tre nya våningsplan istället för endast ett och ett halvt så valde vi att ”trycka ned” det nya huset i backen med plats för en hel källare mestadels under mark.

Tillbyggnad sedd från trädgården

Foto: Jason Strong

– Vår lösning med ett källarplan nedbäddat i marken gör att vi kan smyga in tillbyggnaden på tomten, det var en stor utmaning med tanke på den skyddade miljön ute på Smedslätten i Stockholms Västerort. Vår lösning har gett gott om ny yta utan att göra ett alltför stort avtryck.

Fasad med stående träpanel

Fasadmaterial består av ljusgrå stående limträpanel. Takkonstruktion med kertobalkar och mineralull med gips som innertak. Foto: Jason Strong

– Alla tre trapporna har lite olika djup och längd för att skapa en bra koppling till det befintliga huset. En tumregel för att få till en bra fungerande trappa är att två-gånger-höjden plus djupet på ett steg helst ska vara mellan 60-63 centimeter, bekvämaste förhållandet mellan plan- och sättsteg är när djupet - höjden är 12 centimeter.

Tillbyggnad utifrån

Tillbyggnaden sedd från trädgården. Foto: Jason Strong

Peter Sahlin understryker att det exteriöra uttrycket måste ”hålla ihop” så att det inte går överstyr.

– Eftersom Valsen 9 är ett trähus med stomme och panel i trä så blev materialvalet i tillbyggnaden ganska naturligt. Att bara kopiera det gamla husets träpanel kändes däremot inte så kul eller spännande. För att ”få ner” skalan liten på den nya tillbyggnaden valde vi därför en mycket bredare panel 

Skiss över fasaderna

Ritning fasaderna.

– Martinssons limträpanel är ett perfekt val utifrån våra krav, en limträbalk som har sågats upp i panelbrädor om cirka 25 centimeters bred. De tål hur mycket regn och sol som helst. En liten skugglist gör att panelen får en rytm utan att ge alltför stor skuggverkan som exempelvis en locklist-panel. Den smala passagen mellan nya och gamla huset har dessutom fått en egen unik panel. 

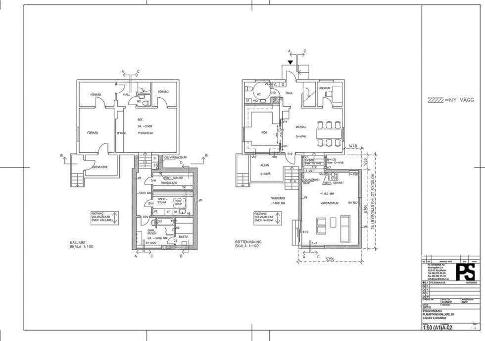
Planlösning nedervåning och källare

Planlösning bottenvåning och källare.

Före ombyggnaden hade det befintliga huset en smutsgul färg med gröna foder och vindskivor.

– Färgsättningen har spelat en stor roll. Vår ambition har varit att hitta en balans mellan nytt och gammalt utan att låta kulören skrika och dominera.

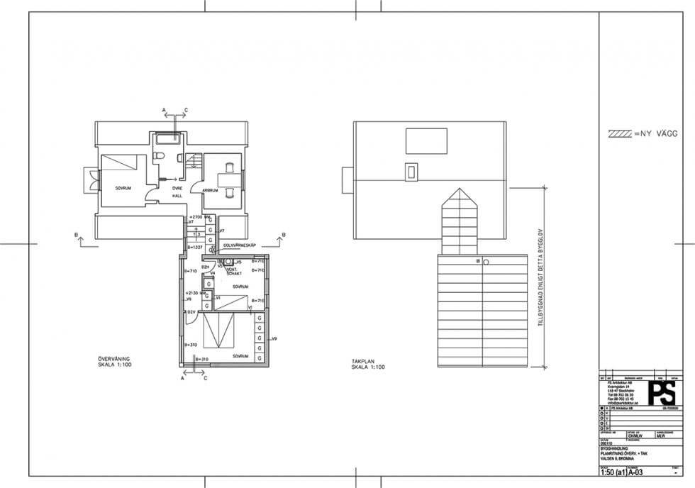
Planlösning ovanvåning.

Planlösning ovanvåning.

Sektionsritning

Sektionsritning över de tre våningsplanen.

Husets placering på tomten

Husets placering på tomten.